School building extension with TS3 technology

26.08.2021

The Feld school building in Richterswil is being topped up and renovated at a cost of 7.6 million Swiss francs. Around four million Swiss francs of this will be invested in the two-story addition using TS3 technology. This will create an additional 1,542 square meters of space for classrooms, group rooms and a music room.

School building extension with TS3 technology

The two additional floors on the school building Feld solve the space problem in the municipality of Richterswil. On an area of 1,542 square meters, several classrooms, group rooms and a music room will be created. The project includes a total of 300 square meters of reserve space, which can be which can be integrated into school operations as needed. In this way, the council is taking into account the longer-term population development of Richterswil.

Large-format panels with TS3 technology
A 34 cm thick board barrier was installed on the existing roof of the school building. 34 cm thick cross laminated timber panel was installed as a load distribution panel. It enables a flexible room layout in the extension, independent of the existing load-bearing structure below, existing load-bearing structure. The two-story extension now stands on the storey extension now stands on it. The TS3 technology is used load distribution slab, the floor slab and the roof of the storey and the roof of the extension. Schilliger Holz AG delivered pre-treated plywood panels, which were grouted on site with a jointing resin to form large resin to form large homogeneous large-format panels. Depending on the floor, the panels have a thickness between 280 and 340 millimeters and are up to 13.5 meters long. A total of 540 meters of TS3 joints were created. Saxer Holzbau recently completed the erection work. completed.

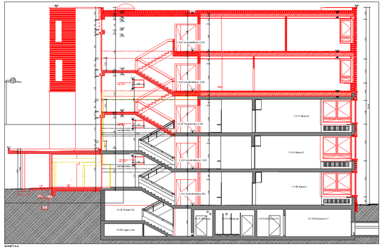
Cut SH Richterswil
Erection work

The cross laminated timber panels were pretreated in the factory and provided with sealing and segmental bands (white and black bands on the face). (white and black bands on the front side). After positioning, they were joined together by joint grouting. On the Finally, on the underside of the ceiling, the joint is hardly visible. Beams are no longer necessary.

TheTS3 technology
The TS3 technology is the result of over ten years of research and of Timbatec Holzbauingenieure Schweiz AG together with ETH Zurich and the Bern University of Applied Sciences in Biel. The process connects wood components to each other on the face side by joint grouting and without pressing pressure. Together with the specially developed connection detail at the column head, the TS3 technology enables TS3 technology enables biaxial and point-supported large wooden surfaces - without the previously customary beams. These large surfaces are ideally suited for floor slabs such as those used for the addition to the Richterswil school. Installations can be installed without installations can be installed without obstacles and continuously adapted to changing requirements. ceilings do not require load-bearing walls. This allows flexible room partitioning and simple conversion of the rooms. of the rooms.

TS3 Plan

Service Timbatec
Timbatec advised the general contractor Allreal already in the competition phase and then and then accompanied the project as timber construction engineer. Our services included in particular the project planning and the detailed planning including the works planning, the cost estimation, the tendering and finally the supervision of the execution. execution.

Privacy notice
This website uses external components that can be used to collect data about your behavior. Read more about this in our privacy policy.