Neues Leben für die Schlossmühle Aarau

23.07.2020

Seit 1974 dreht das Rad in der Schlossmühle Aarau wieder. Damals kam es als Geschenk der Mühle Bözen nach Aarau. Doch das Rad drehte vergeblich. Das Innere der Mühle war leer, diente als Lagerraum. Jetzt wird die Schlossmühle umfassend saniert. Timbatec berechnete die Statik der vielen Holzbauteilen.

Neues Leben für die Schlossmühle Aarau

Schon bald mahlt das Wasserrad Getreide, Senf und Gewürze. Am Werk ist die Gesellschaft zur Schlossmühle Aarau. Diese will die Schlossmühle wieder zum Laufen bringen.

Bild Mühle Aarau

«Mitten in der Stadt so eine Mühle zu haben, die aktiv wieder betrieben wird, ist etwas sehr Spezielles», sagt Urs Wälchli, Präsident der Gesellschaft zur Schlossmühle. Er hilft selber mit, das Innere wieder einzurichten.   

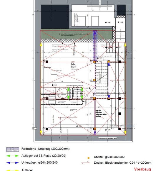
Dafür mussten viele Teile nachgebaut werden, zum Beispiel die Senfmühle und das Mehlsieb. Über dem Unter- und dem Erdgeschoss liegen neue Decken aus Blockhausbohlen. Timbatec berechnete die Querschnitte und Dimensionen der neuen und sanierten Holzbauteilen, damit sie den Kräften des Mahlprozesses standhalten. Die Bauunternehmung Zubler AG führte die Arbeiten schliesslich aus.  

Statikplan Mühle Aarau

Die Kraft des Wasserrades reicht aus, um die Senfmühle zu betreiben. Die schweren Mühlsteine für das Getreide werden elektrisch in Bewegung gesetzt. Die Gesellschaft hat das Innere der Schlossmühle nicht nur saniert und neu eingerichtet. Sie hat auch einen zusätzlichen Raum geschaffen, der als Senfkeller genutzt wird. «Wir planen da auch Apéros und kulturelle Aktivitäten», erklärt Urs Wälchli.   

Quellen und Bildnachweis: www.srf.chwww.muehleaarau.chwww.chalira.ch

Datenschutzhinweis
Diese Webseite nutzt externe Komponenten, welche dazu genutzt werden können, Daten über Ihr Verhalten zu sammeln. Lesen Sie dazu mehr in unseren Datenschutzinformationen.